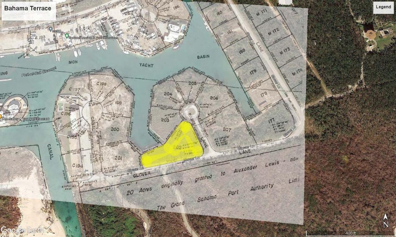
BASIN LANE
Description
Affordable Multi-family Canal Lot with 111 feet on the water. This is an excellent sight for an apartment complex with dockage. Adjacent Lots also available. Call Today for a viewing.
Address
-
Address BASIN LANE
-
Country Bahamas the
-
City/Town Grand Bahama/Freeport
Overview
- Property ID 56158
- Price $125,000
- Property Type Lots/Acreage
- Property status For Sale Only
- Bedrooms 0
- Bathrooms 0
- Size 0 SqFt
Get Directions
Walk Score
Walk Score
Car-Dependent
Bike Score
Somewhat Bikeable
Contact
Ratings & Reviews
0 Reviews
Similar Properties
17 Pine Island
$550,000Exclusive Canal Lot for Sale in Beautiful Grand Bahama Island Discover your slice of paradise just 70 miles from Florida! This stunning canal lot is situated in a prestigious gated community, offering 145 feet on the water with deep water dockage for your boat and direct access to the open sea. This spacious lot measured […]
#312 GINN SUR MER
$750,000Future Development in Grand Bahama was designed several years ago and will contain a 2,000-acre select luxury living residential community in Grand Bahama, an 18-hole oceanfront golf course along the south side of the Grand Bahama development, and a second world-class 18-hole Jack Nicklaus designed course. The Bahamas clubhouse will offer fine dining, a spa […]
JOHN SEARS TRACT PARCEL B
$1,500,000From the road to the beach, almost 22 acres of virgin beachfront property. Ideal for a Boutique hotel, Eco theme park, you name it, the sky is the limit! This tract measures 485.13′ on the beach x 1991.07′ x 486.50′ on the road x 1,982.03′. There is an adjacent tract, which is slightly larger, directly […]
GRANT B 148 RIDING POINT
$1,450,000Attention Developers. Let me draw your attention to 22 acres of raw beachfront land to the west of the Bulk Oil Facility in Eastern Grand Bahama. Accessible by Riding Point Road. Let your imagination loose. Ideal for eco-adventures along the pristine beaches of Eastern Grand Bahama Island. Call Catherine for directions.