SANDYPORT DR.

$500,000
For Sale Only
55801 Property ID
9,626 SqFt Size
0 Bedrooms
0 Bathrooms

Description

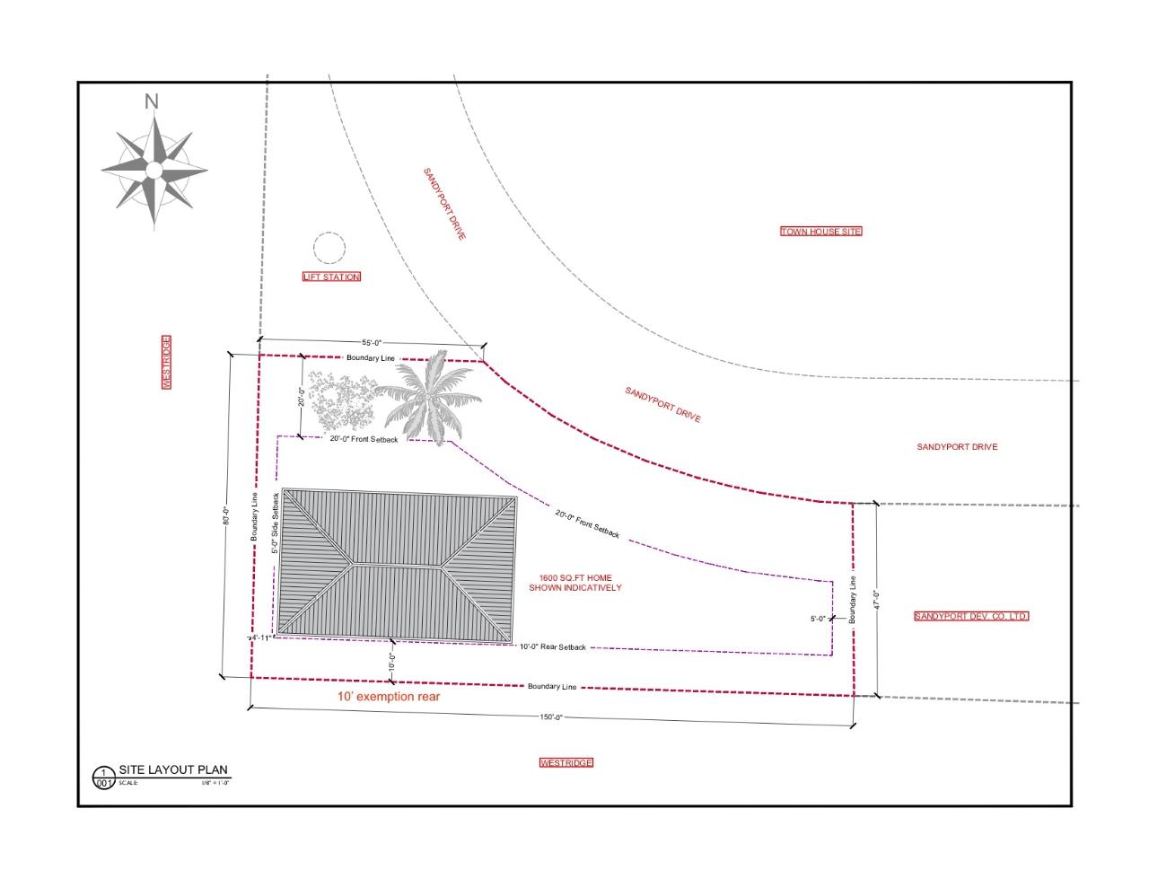
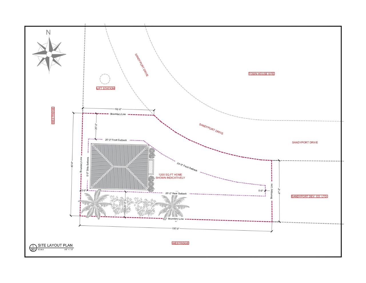
Rare 9,626 sq. ft. multifamily lot in the sought-after gated community of Sandyport. This prime property offers an unparalleled opportunity for multifamily development. Build four units for a strong return on investment. Please see potential building layout in the photos, with buildable square footage in the purple boundary. With the scarcity of available lots in Sandyport, this is one of the last chances to secure a foothold in this prestigious neighborhood. Don’t miss out on the potential of crafting luxury living spaces in a secure and exclusive environment.

Address

Open on Google Maps

Overview

  • Property ID 55801
  • Price $500,000
  • Property Type
  • Property status
  • Bedrooms 0
  • Bathrooms 0
  • Size 9,626 SqFt

Get Directions

Walk Score

13

Walk Score

Car-Dependent

View more
29

Bike Score

Somewhat Bikeable

View more

Ratings & Reviews

0 0 Reviews
  • 5 0%
  • 4 0%
  • 3 0%
  • 2 0%
  • 1 0%

0 Reviews

Similar Properties